- 장애인용 승강기가 없는 경우, 승강기가 고장 난 경우 휠체어를 탄 장애인은 이동이 불가능
- 승강기는 멀리 돌아가야 하는 경우도 많음
- 비장애인 다수가 이용해 휠체어를 탄 장애인이 승강기를 이용하지 못하는 경우 발생
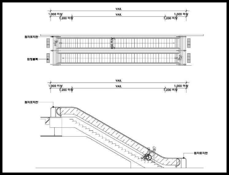
- 장애인용 에스컬레이터 설치 기준 있음
공공시설에서 에스컬레이터의 신규 또는 교체 설치할 때 휠체어 탑승용 에스컬레이터 설치 의무화

'공약 > 장애인권' 카테고리의 다른 글
| [장애] 장애인 화장실 관리 (0) | 2023.10.12 |
|---|---|
| [장애] 일자리, 장애인 공공 시설물 점검 (0) | 2023.10.03 |
| [인권] 차별문제를 포괄적으로 다루는 "평등과 차별금지에 관한 기본법" 제정 (0) | 2023.08.30 |
| [장애] 점자 표준규격 의무화 (0) | 2023.08.23 |
| [장애] 장애인 시외 이동권 확보 (0) | 2023.08.23 |